Beratung für Rangierhilfen & Mover
Willkommen in unserem FAQ-Bereich rund um Rangierhilfen und Mover. Hier findest du Antworten auf die wichtigsten Fragen zu Auswahl, Nutzung und Technik unserer Rangierhilfen und Mover. Weiter unten gibt es in unserem Moverpedia zudem kurze Erklärungen zu wichtigen Fachbegriffen, die dir bei deiner Kaufentscheidung helfen.
Wie kann ich herausfinden, welche Rangierhilfen passen?
Wir zeigen Ihnen hier 2 Wege auf, die Sie auch parallel nutzen können.
(A) Zunächst finden Sie hier die wichtigsten Kontakte. Einfach mal fragen...
(B) Zudem hier die Standard-Spezifikationen der Rangierhilfen.
Passt das, wäre es meist schon alles. Natürlich sollte vor der Achse (Standard), notfalls hinter der Achse, Freiraum für die Rangierhilfe sein. Keine Trittstufen o.ä. Sind unter dem Wohnwagen Abwasserleitungen, Ersatzrad o.ä., müssen diese natürlich versetzt werden.
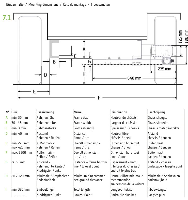
Unser Vorschlag: die Zeichnung mit den Werten von EASYDRIVER (am besten, weil am umfassendsten) ausdrucken und die Werte von Ihrem Wohnwagen prüfen und daneben schreiben. Schon haben Sie alles parat für einen Vergleich. Sieht oft kompliziert aus - sind aber effektiv nur 9 Werte zum Ziel...
Sollten Sie mit dem Standard nicht zurecht kommen, so gäbe es hier noch Adapter für bestimmte Wohnwagen und Chassis / Einbausituationen: https://www.camping-factory.com/fahrzeug/wohnwagen-wohnmobil-zubehoer/rangierhilfen-mover-zubehoer/adapter/
Aus dieser Liste von REICH Easydriver können Sie gut herauslesen, für welche Wohnwagen-Typen auf jeden Fall Adapter notwendig sind (und wir empfehlen auch ausdrücklich die REICH easydriver Rangierhilfen in diesen Fällen, da alles durchgehend sauber in der ABE Allgemeinen Betriebserlaubnis der Easydriver integriert und abgenommen ist):
Reich Easydriver Befestigungssätze Montagerahmen
(A) Kontakte
Bei Anfragen immer direkt mitsenden, das erübrigt die meisten Rückfragen:
- Wohnwagen-Hersteller
- Wohnwagen-Modell
- Baujahr (nicht Erstzulassung!)
- Anzahl Achsen
- Zulässiges Gesamtgewicht (kg)
- Bilder vor und hinter der Achse
| Quattro | |
|---|---|
| Web | https://www.emergoplus.de/product-categorie/quattro-movers/ |
| Support | service@emergoplus.com |
| Truma Go2 | |
| Web | https://www.go2-camping.com/de |
| Support | Kein Support (auch nicht nach dem Kauf). Keine Herstellergarantie! |
Diese Angaben und mehr finden Sie auch in den Montage- und Bedienungsanleitungen, die bei fast allen Rangierhilfen hier im Shop unter "Downloads" bei jedem einzelnen Produkt hinterlegt sind.
AL-KO Ranger
Für L-Rahmen und U-Rahmen (im Standard-Lieferumfang)
.png)

Bitte bedenken Sie, dass die Bodenfreiheit dann um den gleichen Wert sinkt (vgl. Easydriver Zeichnung, Wert G+H bzw. bei den anderen Rangierhilfen einfach als Minimum zwischen Rahmenunterkante und Boden angegeben, hier 165 mm).
Easydriver Basic
Nur für L-Rahmen (im Standard-Lieferumfang)

Easydriver Adapter Reich 227-2308S Distanzplatten-Set 5 mm SMART oder
Reich Distanzplatten-Set 10 mm oder
ReichDistanzplatten-Set 20 mm oder
Reich Distanzplatten-Set 30 mm
Easydriver Active
Nur für L-Rahmen (im Standard-Lieferumfang)

Reich Distanzplatten-Set 5 mm oder
Reich Distanzplatten-Set 10 mm oder
Reich Distanzplatten-Set 20 mm oder
Reich Distanzplatten-Set 30 mm
Easydriver Pro
Nur für L-Rahmen (im Standard-Lieferumfang)

Reich Distanzplatten-Set 5 mm oder
Reich Distanzplatten-Set 10 mm oder
Reich Distanzplatten-Set 20 mm oder
Reich Distanzplatten-Set 30 mm
Easydriver Infinity
Nur für L-Rahmen (im Standard-Lieferumfang)

Reich Distanzplatten-Set 5 mm oder
Reich Distanzplatten-Set 10 mm
Reich Distanzplatten-Set 20 mm oder
Reich Distanzplatten-Set 30 mm
Enduro EM... (außer 505)
Für L-Rahmen und U-Rahmen (im Standard-Lieferumfang)
.png)

Bitte bedenken Sie, dass die Bodenfreiheit dann um den gleichen Wert sinkt (vgl. Easydriver Zeichnung, Wert G+H bzw. bei den anderen Rangierhilfen einfach als Minimum zwischen Rahmenunterkante und Boden angegeben, hier 165 mm).
Enduro EM505
Für L-Rahmen und U-Rahmen (im Standard-Lieferumfang)
.png)

Bitte bedenken Sie, dass die Bodenfreiheit dann um den gleichen Wert sinkt (vgl. Easydriver Zeichnung, Wert G+H bzw. bei den anderen Rangierhilfen einfach als Minimum zwischen Rahmenunterkante und Boden angegeben, hier 155 mm).
Quattro Titanium
Für L- und U-Rahmen (im Standard-Lieferumfang)
.png)

Bitte bedenken Sie, dass die Bodenfreiheit dann um den gleichen Wert sinkt (vgl. Easydriver Zeichnung, Wert G+H bzw. bei den anderen Rangierhilfen einfach als Minimum zwischen Rahmenunterkante und Boden angegeben, hier 165 mm).
Quattro Platinum
Für L- und U-Rahmen (im Standard-Lieferumfang)
.png)

Bitte bedenken Sie, dass die Bodenfreiheit dann um den gleichen Wert sinkt (vgl. Easydriver Zeichnung, Wert G+H bzw. bei den anderen Rangierhilfen einfach als Minimum zwischen Rahmenunterkante und Boden angegeben, hier 155 mm).
Truma Go2

Bitte bedenken Sie, dass die Bodenfreiheit dann um den gleichen Wert sinkt (vgl. Easydriver Zeichnung, Wert G+H bzw. bei den anderen Rangierhilfen einfach als Minimum zwischen Rahmenunterkante und Boden angegeben, hier 170 mm).
Batterien - Welche Typen sind empfehlenswert?
Viele Angebote auf dem Markt enthalten klassische AGM Batterien oder gar Blei-Säurebatterien. Von diesen Angeboten ist jedoch aufgrund zahlreicher Nachteile abzuraten. Zum Beispiel wegen: geringerer Lebensdauer, erhöhtem Lade- und Pflegeaufwand, hohem Gewicht, austretender Gase, dem Auslaufen von Säure. Herkömmliche (AGM) Batterien sind zwar in der Anschaffung oft günstiger - aber mit der Zeit kauft man ein Vielfaches an Batterien nach, als wenn man gleich in eine OPTIMA oder einen LITHIUM Akku investiert hätte. Und wenn man Pech hat, ist die günstige Standard-AGM schon nach kurzer Zeit defekt, weil man sie nicht rechtzeitig oder nicht optimal nachgeladen hat. Das passiert bei hochwertigen Batterien mit modernster Technik eben nicht so leicht und so schnell. Zudem hat die Lithium-Technologie den Vorteil, dass immer die gleiche Leistung abgegeben wird. Ein Lithium Akku bringt bis zum Schluß volle Kraft - alle anderen Akkus werden immer schwächer.
Fazit: Beim Auto ist die häufigste Pannenursache zu bestimmten Jahreszeiten die Batterie. Beim Mover hängt die Einsatzbereitschaft, die Einsatzdauer und die Freude am Produkt ebenso entscheidend an der Batterie - es ist der Bereich, in dem man keine Kompromisse bei Typ und Qualität machen sollte.
Von Angeboten, welche nicht näher definierte Batterien enthalten, ist generell abzuraten. Wir hörten bereits von nicht ordentlichen Beschreibungen von Batterien auf Internetseiten (Hersteller, Typ, Kapazität in Ah, EAN Code oder Hersteller-Artikelnummer) und einer späteren Lieferung irgendeiner, teils unetikettierten No-Name-Batterie, deren Marke und deren Eigenschaften nicht nachvollziehbar waren. Davon sollte Abstand genommen werden.
Darüber hinaus darf es sich bei einer Batterie natürlich nicht um eine reine Starterbatterie handeln. Mover benötigen Antriebsbatterien.
Batterien - Wie lange kann man mit einer Batterie "movern"?
Grundsätzlich abhängig ist dies von den "Ampere Stunden" einer Batterie, angegeben kurz in "Ah". In einigen Rangierhilfen-Anleitungen oder Beiträgen ist noch die Rede davon, dass mindestens 66 Ah oder mindestens 100 Ah oder ähnlich hohe Werte notwendig seien. Vergessen Sie das getrost! Das ist veraltet und gilt höchstens noch für Batterien alter Technik (Klassische AGM oder Blei-Säure z.B.). Diese sollte man jedoch ohnehin nicht mehr verwenden. Das beste Beispiel zum Beleg ist, dass die Deutsche High-Tech Firma Reich beim EasyDriver für Einachser sogar den MPP Lithium Power Pack mit nur 8,8 Ah empfielt und das für die meisten Mover und kurze Ein- und Ausparkvorgänge von Einachsern ausreicht.
Ganz grob und pauschal und gültig für optimal geladene Akkus sowie ebene, gut befestigte Flächen ohne
Hindernisse kann man sagen:
Lithium ca. 9 Ah oder Optima ca. 38 Ah = ca. 12-15 Minuten
Lithium ca. 20 Ah oder Optima ca. 55 Ah = ca. 20-30 Minuten
Optima mit ca. 75 Ah entsprechend länger. Werden aber meistens nur dann eingesetzt, wenn wirklich
sehr schwieriges Terrain erwartet wird oder man die Batterie zusätzlich noch für andere Zwecke einsetzt.
Worin besteht der Unterschied zwischen einem halbautomatischem und einem vollautomatischem Mover?
Der Unterschied besteht im Anlegen der Antriebsmotoren an das Wohnwagenrad. Bei halbautomatischen Mover geschieht dies mittels einer Handkurbel oder einem Hebel. Bei vollautomatischen Mover wird dies von einem Elektromotor erledigt und über die Fernbedienung gesteuert.
Wie hoch ist der Verlust an Bodenfreiheit nach der Montage des Mover?
Der Verlust der Bodenfreiheit beträgt in der Regel zwischen 5 – 8 cm. Die ist abhängig von der Art der Rangierhilfe, sowie vom Chassis des einzelnen Wohnwagens. In Ausnahmefällen müssen bei der Montage zusätzliche Adapterplatten verbaut werden. Da dies ein ausführliches Thema ist, können Sie sich bei diesbezüglichen Fragen gerne an unser geschultes Fachpersonal wenden.
Wie viel wiegt ein komplettes Rangiersystem?
Mit den leichten Lithium-Akkus hat man eine sehr deutliche Gewichtsersparnis gegenüber herkömmlichen Batterien. Da wir wissen, wie sehr es immer wieder auf das Gewicht ankommt, haben wir in jedem Komplett-Set in unserem Shop die Gewichte der Power Sets angegeben (Batterie & Co.) sowie das Gewicht der Rangierhilfe.
Wo liegt der Unterschied zwischen einer Batterie und einem Lithium Akku?
Die hauptsächlichen Unterschiede liegen im Gewicht und in der Haltbarkeit.
Gewicht:
Herkömmliche Batterien oder die OPTIMA Yellow Top mit 75 Ah wiegen inklusive der zusätzlich benötigten
Ladegeräte bis zu 30 kg. Akkus mit der Lithium Technologie wiegen hingegen inklusive Ladegerät nur
ca. 4-5 kg bei 20 Ah.
Lebensdauer:
Eine durchschnittliche Batterie hat im Wohnwagen eine Lebensdauer von ca. 5 -7 Jahren, wobei ein Lithium
Akku eine Lebensdauer von ca. 1500 Be- und Entladezyklen hat.
Welche Vorteile hat ein Lithium Akku gegenüber einer Blei-Säure Batterie?
Lithium Akkus vereinen viele Vorteile und sind Blei-Säure-Batterien in fast allen Belangen überlegen. Aus einer kleinen, leichten Bordbatterie kann viel Energie entnommen werden. Die Lithium Akkus sind langlebig, schnell zu laden, verzeihen Tiefenentladungen und erreichen einen hohen Wirkungsgrad. Lithium Akkus eignen sich bestens für Hochstromanwendungen, da ihre Spannung beim Betrieb kaum erkennbar abfällt. Ein großer Vorteil ist auch das Gewicht, welches bei vergleichbarer Kapazität weniger als die Hälfte des Gewichtes von vergleichbaren Gel- und AGM-Batterien beträgt, dies bedeutet eine Gewichtseinsparung von bis zu 70 % sowie Platzeinsparung von bis zu 70 %.
Muss der Mover nach der Montage beim TÜV eingetragen werden?
Alle bei uns erhältliche Rangiersysteme werden mit einer allgemeinen Betriebserlaubnis (ABE) ausgeliefert. Es ist keine Eintragung in den Fahrzeugpapieren erforderlich.
Kann ich beim vollautomatischen Mover die Walzen auch manuell zurückstellen?
Ja. Je nach Version kann der Antrieb mit einem Schraubenschlüssel oder mit einem normalen Schraubendreher manuell zurückgestellt werden.
Warum empfehlen Sie einen Einbau vor der Fahrzeugachse?
Um den Rangierantrieb vor Steinschlägen und Spritzwasser der Wohnwagenreifen besser zu schützen. Grundsätzlich kann jedoch auch hinter der Fahrzeugachse eingebaut werden.
Muss ich die Batterie bei Nichtgebrauch über den Winter laden oder sogar aus dem Fahrzeug ausbauen?
Wir empfehlen Ihnen die Batterie aus dem Fahrzeug auszubauen. Batterien sollten grundsätzlich vollgeladen gelagert werden. Die Lagerung sollte an einem kühlen, trockenen Ort stattfinden und ein Erhaltungsladegerät angeschlossen bleiben.
Was bedeutet Soft-Start/Stopp-Technologie?
Das Soft-Start/Stopp-System wird von den Herstellern so beworben, dass es einen präzisen und ruckfreien Rangiervorgang gewährleistet. Allerdings ist es so, dass es nur bei sehr leichten Anhängern wirklich auffällt, ob Soft-Start/Stopp an Bord ist.
Wo wird das Batterieset im Wohnwagen verbaut?
Aus langer Erfahrung empfehlen wir den Einbau in einer der Sitzgruppen oder unter dem Bett. Wir helfen Ihnen gerne bei dieser Entscheidung.
Woran erkenne ich, ob mein Wohnwagen ein AL-KO “M“-Chassis besitzt?
Am Rahmen in der Nähe der Stoßdämpfer wäre ein ca. 5 cm großes “M“ eingeprägt.

Verändert sich die Stützlast nach der Montage der Rangierhilfe?
Die Stützlast steigt (bei vorderseitiger Montage) bzw. verringert sich (bei rückseitiger Montage) um ca. 5kg.
Moverpedia - Rangierhilfen Lexikon
A
Anpressdruck
Der Anpressdruck ist die Kraft, mit der die Antriebswalzen auf den Reifen wirken.Anschwenkweg
Der Anschwenkweg ist die Distanz, die der Mover maximal fahren könnte.Antriebsrollen
siehe "Antriebswalzen".Antriebswalzen
Profilierte Rollen, die die Reifen des Caravans bewegen.Automatischer Mover
siehe "Rangierhilfe / Rangierantrieb - automatisch".D
Drehmechanismus
siehe "Rangierhilfe / Rangierantrieb - halb-automatisch".H
Halb-automatischer Mover
siehe "Rangierhilfe / Rangierantrieb - halb-automatisch".M
Montage
Positionierung der Antriebswalzen: Eine präzise Montage ist wichtig.



